Transformador de carril DIN
PS1219T Manual de instrucciones
Lea antes de la instalación o uso
VolverInformación esencial antes de instalar o utilizar este dispositivo
Este dispositivo ha sido diseñado para su integración en sistemas profesionales de control de acceso en edificios residenciales, comerciales o industriales. Solo debe ser instalado y manipulado por personal técnico cualificado, conforme a las especificaciones del fabricante. El uso indebido, la manipulación no autorizada o la instalación incorrecta pueden provocar daños graves a personas o bienes, y suponen la pérdida de la garantía y de la responsabilidad del fabricante.
Seguridad eléctrica
Antes de conectar, desconectar o intervenir en el dispositivo, asegúrese de que la fuente de alimentación esté completamente desactivada. Aunque este producto puede funcionar a bajo voltaje (p. ej. 12–24 VDC), una manipulación incorrecta puede provocar cortocircuitos, daños a la puerta, sobrecalentamiento o riesgo de descarga eléctrica.
Uso previsto y compatibilidad
Este dispositivo es apto para puertas de madera, metálicas o de aluminio, según el modelo. Algunos modelos están certificados para su uso en puertas cortafuego y salidas de emergencia. Verifique previamente las certificaciones y compatibilidades específicas antes de su instalación. No se recomienda su uso en entornos expuestos a agua, polvo intenso o agentes químicos agresivos, salvo que el dispositivo cuente con la certificación correspondiente (p. ej. IP65, IP68, etc.).
Mantenimiento y uso
No abra, modifique ni manipule el interior del dispositivo. Cualquier intervención no autorizada anula automáticamente la garantía. La limpieza debe realizarse con paños suaves y productos no abrasivos. Se recomienda un mantenimiento periódico a cargo de un técnico, especialmente en entornos de uso intensivo.
Garantía limitada
Este producto está cubierto por una garantía comercial contra defectos de fabricación durante el periodo especificado por Openers & Closers. La garantía no cubre el desgaste por uso habitual, instalaciones incorrectas, manipulaciones, impactos mecánicos o condiciones ambientales no compatibles. Openers & Closers no se hace responsable de daños indirectos, pérdidas económicas o perjuicios derivados de un uso indebido o fuera de especificaciones.
Normativa y conformidad
Este producto cumple, si corresponde, con las normativas aplicables en cada mercado (p. ej. CE, RoHS, WEEE, UL 294, NFPA-80, EN 14846). Consulte el etiquetado del producto y la documentación técnica para confirmar certificaciones específicas.
Eliminación y reciclaje
Este dispositivo contiene componentes electrónicos y no debe desecharse con los residuos domésticos. Debe entregarse en un punto de recogida autorizado para aparatos eléctricos y electrónicos (RAEE/WEEE). El símbolo del contenedor tachado indica esta obligación legal. Su embalaje es reciclable y debe gestionarse conforme a la normativa local.
Propiedad Intelectual y Documentación
El contenido de este manual, así como la tecnología integrada en el producto, están protegidos por derechos de propiedad intelectual e industrial. Queda prohibida su reproducción, distribución, traducción o modificación sin autorización expresa de Openers & Closers.
Dimensiones
Volver
Instalación
Volver
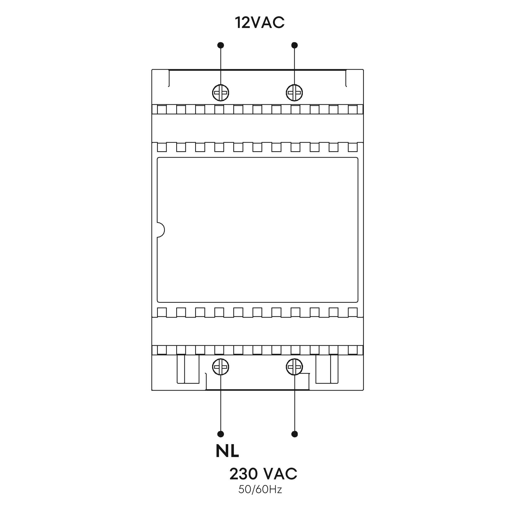
Conexionado
Volver
Contactar con asistencia
¿No encuentras lo que buscas? Nuestro equipo de asistencia puede ayudarte.
Obtener ayudaFichas técnicas
Consulta nuestra extensa biblioteca de fichas técnicas de productos.
Buscar fichas técnicas